Aller au contenu
En kiosque
Cotemaison
  • Mon abonnement
  • Lire le magazine
  • Mes newsletters
  • Mes articles sauvegardés
  • Mes alertes
S'abonner
Dossiers Newsletters
  • ACTU DESIGN
  • VISITES PRIVÉES
  • CONSEILS DÉCO
  • PIÈCES
  • AMÉNAGER & RÉNOVER
  • JARDIN & TERRASSE
  • CÔTÉ ÉVASION
  • Salon Vivre Côté Sud
  • ACTU DESIGN
  • VISITES PRIVÉES
    • Lofts, Appartements
    • Avant/Après
    • Maisons de famille
    • Maisons en bois, chalets
    • Maisons insolites
    • Maisons contemporaines
  • CONSEILS DÉCO
    • Inspirations
    • Couleurs
    • Côté Maison aime
    • DIY, Brico, Déco
  • PIÈCES
    • Cuisine
    • Salle de bains
    • Salon et Salle à manger
    • Chambre et Bureau
  • AMÉNAGER & RÉNOVER
    • Aménagement intérieur, Plans
    • Parquet & sol
    • Construire sa maison
    • Travaux, devis
    • Énergie, chauffage & climatisation
    • Façade, toiture
    • Fenêtres, portes, volets
    • Peinture, carrelage, papier peint
    • Véranda, combles, extension
  • JARDIN & TERRASSE
    • Piscine et Spa
    • Équipement & Mobilier de jardin
    • Aménager sa terrasse, son balcon
    • Aménager son jardin
  • CÔTÉ ÉVASION
    • Côté Sud
    • Côté Ouest
    • Côté Paris
    • Côté Est

  • Dossiers
  • Newsletters

Suivre Côté Maison
  1. Accueil
  2. PIÈCES
  3. Cuisine

Cuisine: la grande pièce conviviale

La cuisine d'aujourd'hui, grande ou petite, est un espace ouvert. Sans aller jusqu'à la cuisine américaine dans le salon, cette pièce vit au coeur de la maison

Cuisine: la grande pièce conviviale
Cuisine: la grande pièce conviviale © DR
Publié le 31 août 2006 à 02h00.

Cuisine: la grande pièce conviviale

  • Le Plan
  • L'îlot central
  • L'ouverture sur le jardin
Voir les 6 photos

Outbrain
En images

Cuisine: la grande pièce conviviale

6 photos
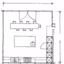
Le Plan
Photo 1 / 6 | © DR
Le Plan

La hauteur de la cuisine est de 3,80 m et le plan de travail contre le mur fait 6 m de long. Le propriétaire, qui est architecte, a décidé que la façade nord de la pièce serait uniquement constituée d'une baie vitrée de 30 m2. Celle-ci s'ouvre sur la terrasse d'un côté, le coin salle à manger de l'autre, où est installée une grande table.

L'îlot central
Photo 2 / 6 | © DR
L'îlot central

Il est en pierre de lave (Basaltina), une pierre non alcaline très résistante qui convient aux cuisines : elle supporte la chaleur des casseroles et l'acidité de certains aliments. Le bloc central est constitué d'un seul morceau de pierre de lave de plus de 400 kg et de 6 cm d'épaisseur.

L'ouverture sur le jardin
Photo 3 / 6 | © DR
L'ouverture sur le jardin

La baie vitrée permet à la cuisine de bénéficier de la lumière du jour, critère important car la famille y passe beaucoup de temps. Les châssis, au double vitrage thermo-isolant, sont en bois peint gris souris (Boss Satin RAL 7039).

Le plafond blanc

Les poutres, peintes en blanc comme les murs, sont espacées de 35 cm. Deux abat-jour (Ø 80 cm) faits sur mesure éclairent le bloc central.

Le sol en granito

C'est un mélange de ciment et de gravier, de 12 cm d'épaisseur. Selon la couleur du gravier et du ciment, le Granito prend différentes nuances. Ici, la teinte obtenue est identique à celle du plan de travail.

La table est un meuble de cantine acheté dans une brocante, ainsi que les chaises dépareillées et repeintes dans la même teinte. Ce mobilier récupéré donne une touche traditionnelle à la cuisine.
Photo 4 / 6 | © DR

La table est un meuble de cantine acheté dans une brocante, ainsi que les chaises dépareillées et repeintes dans la même teinte. Ce mobilier récupéré donne une touche traditionnelle à la cuisine.

Discrétion côté rangements, pour respecter les lignes épurées. Les tiroirs sont encastrés derrière des portes lisses, comme dans le bloc central. Les meubles sont en noyer d'Amérique verni mat, les poignées en acier (Ikea).
Photo 5 / 6 | © DR

Discrétion côté rangements, pour respecter les lignes épurées. Les tiroirs sont encastrés derrière des portes lisses, comme dans le bloc central. Les meubles sont en noyer d'Amérique verni mat, les poignées en acier (Ikea).

L'éclairage venu d'en hautDes lucarnes ont été créées au-dessus du plan de travail. Exposées plein sud, elles procurent de la lumière à toute la pièce. En hiver, la propriétaire remplace les abat-jour blancs par les mêmes en rouge sombre afin de donner une note plus chaleureuse.Le plan du travail le long du murLa hotte a été construite sur mesure d'une seule pièce afin de s'intégrer parfaitement au volume. Le réfrigérateur est en inox, comme tout l'électroménager et le double évier. À noter : la plaque de gaz industrielle (Smeg) est placée sur le plan de travail, et non pas encastrée, ce qui est plus pratique pour cuisiner à plusieurs.La porte coulissante invisibleAutre exemple qui contribue à l'épure de la pièce : une porte coulissante sans poignée cache la salle de jeux attenante. Le meuble de cuisine placé au-dessus de la porte dissimule le rail.Le chauffage dissimuléRadiateurs invisibles : la cuisine est chauffée par des radiateurs cachés dans un "caniveau" qui court tout le long de la baie vitrée. Une grille permet une diffusion homogène de l'air chaud.
Photo 6 / 6 | © DR

L'éclairage venu d'en haut

Des lucarnes ont été créées au-dessus du plan de travail. Exposées plein sud, elles procurent de la lumière à toute la pièce. En hiver, la propriétaire remplace les abat-jour blancs par les mêmes en rouge sombre afin de donner une note plus chaleureuse.

Le plan du travail le long du mur

La hotte a été construite sur mesure d'une seule pièce afin de s'intégrer parfaitement au volume. Le réfrigérateur est en inox, comme tout l'électroménager et le double évier. À noter : la plaque de gaz industrielle (Smeg) est placée sur le plan de travail, et non pas encastrée, ce qui est plus pratique pour cuisiner à plusieurs.

La porte coulissante invisible

Autre exemple qui contribue à l'épure de la pièce : une porte coulissante sans poignée cache la salle de jeux attenante. Le meuble de cuisine placé au-dessus de la porte dissimule le rail.

Le chauffage dissimulé

Radiateurs invisibles : la cuisine est chauffée par des radiateurs cachés dans un "caniveau" qui court tout le long de la baie vitrée. Une grille permet une diffusion homogène de l'air chaud.

Plongez dans le sujet

Cuisine fermée : nos ambiances coups de coeur
Cuisine
Cuisine fermée : nos ambiances coups de coeur
La cuisine fermée existe bel et bien encore ! Il semblerait même qu'elle se dessine à nouveau dans les plans des propriétaires de maison ou d'appartement. Avec îlot ou grande tablée, contemporaine, design ou vintage, la cuisine fermée se dévoile sous de multiples facettes.
  • Ces cuisines où l'on aime se retrouver
    Cuisine
    Ces cuisines où l'on aime se retrouver
  • Une belle cuisine conviviale pour recevoir
    Cuisine
    Une belle cuisine conviviale pour recevoir
Allez + loin
  • Petite cuisine fonctionnelle en L
    Cuisine
    Des petites cuisines fonctionnelles
  • Cuisine, But, à partir de 449 euros
    Cuisine
    Une vraie cuisine... même dans un petit studio
  • Plus d'infos : cuisine Bolero, façade en panneaux de fibres de moyenne densité revêtement mélaminé brillant. Structure en panneaux de particules mélaminé. Poignées prise de main. Haut de 40 cm. Haut de 80 cm. Bas de 40 cm. Bas four/plaque de 60 cm. Bas sous évier de 80 cm. Existe en plusieurs coloris, 2499 euros (prix selon implantation type), Conforama Cuisine.
    Conforama
    Cuisine ouverte : réalisez votre nouvelle pièce à vivre
  • Plus d'info : Touch New poubelle 30 litres, 131 euros, Brabantia chez de Bijenkorf.
    Cuisine
    Nos conseils pour une cuisine ouverte chaleureuse et déco
  • Comment créer une cuisine conviviale ?
    Cuisine
    Comment créer une cuisine conviviale ?
  • 30 aménagements pour une grande cuisine
    Cuisine
    30 aménagements pour une grande cuisine
  • Cuisine ouverte : nos astuces déco pour la démarquer du séjour
    Cuisine
    Cuisine ouverte : nos astuces déco pour la démarquer du séjour
  • Cuisine ouverte : la plus tendance des cuisines
    Cuisine
    Cuisine ouverte : la plus tendance des cuisines
  • Réalisation Aurore de Charette
    Cuisine
    Avant/après : une cuisine ouverte qui réinvente l'espace
  • .
    Cuisine
    Des cuisines semi-ouvertes pratiques et stylées
  • Aménager une cuisine comme un salon
    Cuisine
    Aménager une cuisine comme un salon
  • Eclairage ciblé pour éclairer le plan de travail ou décoratif dans une vitrine, la cuisine Bruges conjugue fonctionnalité et esthétisme. Cuisine Bruges. Gamme Koncept by Confo. 1669 euros. Prix selon plan type. Conforama Cuisine.
    Conforama
    Aménagement cuisine : les secrets d'une pièce bien pensée
  • Cuisine ouverte avec grand ilot en finition cachemire, vitrine noire en verre fumé et salle à manger.
    Cuisine
    Une cuisine design pour une pièce de vie déco et singulière
  • Comment rendre une cuisine plus fonctionnelle ?
    Lapeyre
    Comment rendre une cuisine plus fonctionnelle ?
  • .
    Cuisine
    La cuisine : pièce technique et artistique
Outbrain

Connexion à Prisma Connect

Logo
Cotemaison
  • Mentions légales
  • Accessibilité : non conforme
  • Conditions générales d'utilisation
  • Charte pour la protection des données
  • Gérer les cookies
  • S'abonner
  • Equipe éditoriale
  • Tous nos auteurs
  • Publicité
  • Demande d'utilisation de nos contenus

Suivre Côté Maison


© 2026 Prisma Media - Louis Hachette Group , tous droits réservés. CPPAP : 0930 W 90092 - Fréquentation certifiée par l'ACPM.